Proje Tarihi : Başlamak Üzere
Talepler Toplanmaya Başladı
Adres :
Ataşehir Mah. Fadime Canbay Cad. (Final Okulları Arkası)
İçerik
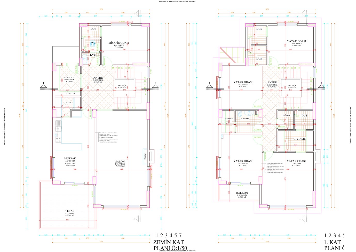
5 Adet Villa, Kapalı Otopark, 770m2 Arsa, Kış Bahçesi, 250m2 2 Katlı 5+1 Villa, Radye Temel

Proje Görselleri